Architectural Design
Help !!

The Brief:
Having lost confidence with his architect, Mr B came to us to complete four main objectives for him.
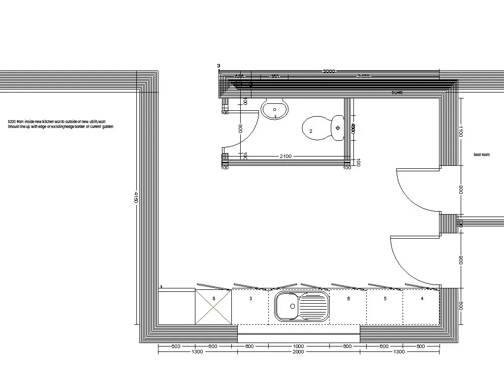
1: To position and layout a new utility room to be built on the back of this converted cowshed.
2: To Design the internal layout of the main living space as the client was struggling to visualise how the space would work.
3: To Design and supply their new kitchen as part of this conversion
4: To produce CAD images the proposed bathroom layout to ensure it would work.
New Utility:
As Mr B is a farmer, and this conversion is centrally located within the farm yard, one of the main requisites was to have separation for the ' muddy' farm boots and clothes whilst maintaining a clean entrance for day to day use.
As outside space was not a problem, I suggested an external 'mud' room with a direct door to the utility.
This allows for a separate every day entrance way plus keeps the utility free from muddy boots and coats.
The utility room has loads of space for the dogs beds behind the door, and Coat hooks and Seat against the cloakroom wall.
Final internal design has not yet been discussed in any detail.

Internal living space layouts.
This is where having our CAD software comes into its own, although primarily for designing kitchens, we utilise it for showing people complete interiors.
We produced various variations so that the client could then see how the layout would work and thus enable them to make decisions accordingly
Kitchen Design
Only a basic design has been completed thus far, mainly to enable the basic living areas to be defined, and drainage to be correctly located.
I will be revisiting to go through the kitchen design in more detail, as the client gets towards that stage of the project.
Bathroom Visualisation
The client asked to see if I could produce some CAD images of the proposed Master en-suite layout, to ensure that what they had in mind was actually going to work in practice.
Two quick CAD images were produced to allow the client to 'see' the layout, and then be able to make the correct decisions and order the correct bathroom furniture and fittings.
The conclusion
The client now has enough information to:
- Understand the basic layout of the whole of the living area.
- Be able to build the utility room, knowing how it will fit with the rest of the house, and work how its needed to in real life.
- Know where the stairs are going to go up to the mezzanine.
- Know where the chimney /wood burner will be positioned.
- Know where to put the drainage for the kitchen, downstairs cloakroom and utility.
- Make informed decisions for the en-suite
- Look forward to finishing designing the kitchen and utility rooms properly.














