Interior architectural design
Help !!
Poor flow and poor light
The Brief:
Mrs M - having had an architect draw up plans to link her existing detached garage and house with a new boot room, she came to me for help with internal layout and kitchen design assistance. .
Her concerns.
Mrs M was unsure whether to retain both doorways between her kitchen and hallway or block one off to create a more functional kitchen-diner. She was also concerned about the limited natural light in the hallway, which added to the challenge of making the right decision.
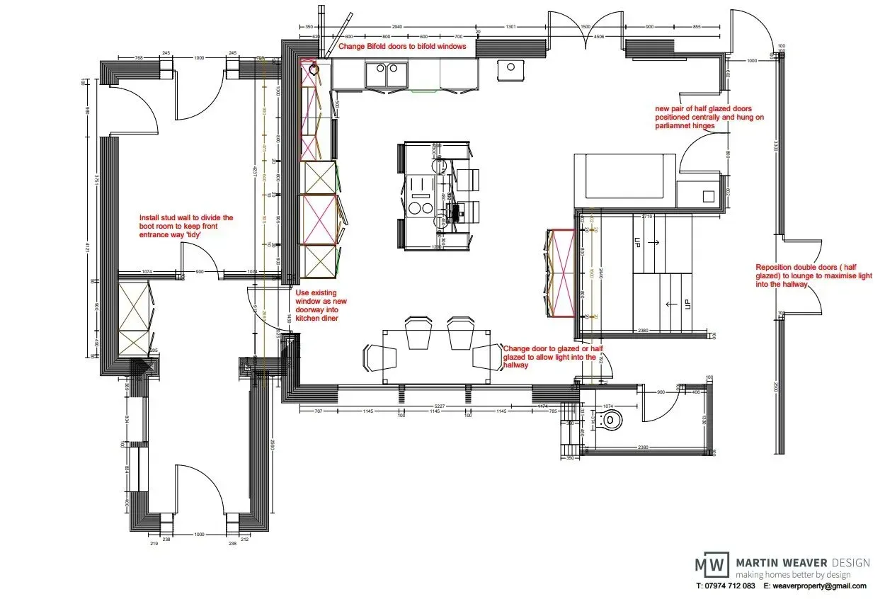
My additional Thoughts After Reviewing the Architect’s Plans
After studying the proposed layout, I had several concerns that I felt were important to flag before moving forward:
Access through the boot room : The route from the back of the new boot room into the kitchen feels unnecessarily long — especially for day-to-day use.
Entrance experience : As it stands, guests would have to walk through a space designed for coats and muddy boots just to enter the house. It doesn’t offer the warm, welcoming feel you'd ideally want.
North-facing bifold doors : While visually appealing, bifold doors on a north-facing elevation — especially in this location — are unlikely to be opened fully more than a handful of days each year. It’s worth considering whether they offer real value for how the space will actually be used.
Kitchen and seating disconnection : With the kitchen located as per the plans, anyone relaxing in the soft seating area would be physically and visually disconnected from whoever is cooking — not ideal for sociable living.
Hallway door dilemma : I did explore the idea of creating a pantry next to the cloakroom, but this layout compromised the kitchen design and made access to the bedrooms from the kitchen unnecessarily long.
Wasted hallway space : Blocking off the second kitchen-hallway door may make the kitchen easier to design, but it would leave part of the hallway effectively redundant — a missed opportunity in terms of both space and flow.
My Proposed Solution

After considering the layout in more detail, here’s how I would approach some of the challenges:
- Boot room and entrance improvement: I’d move the internal door to the kitchen so it sits where the current window is. This allows the new boot room to be divided into two functional spaces — a more generous and welcoming entrance hall with coat storage for guests, and a separate boot room/utility area tucked behind a door, keeping it out of sight.
- Rethinking bifolds: I’d replace the north-facing bifold doors with a bifold window. This still allows for a good connection to the patio — ideal for passing out food and chatting with guests — while keeping the flexibility to open it fully for ventilation. You already have French doors elsewhere for direct garden access.
- Keep both doorways to the hallway: Rather than blocking one off, I’d keep both kitchen-to-hall doors, but with upgrades:
- Replace the single door with a central pair of half-glazed doors, ideally on Parliament hinges so they can fold back flat against the wall. This improves both light and flow.
- The hall door near the cloakroom could also be replaced with a half-glazed door to increase light in the hallway.
- Improving hallway light: Depending on what’s above the staircase, I’d consider installing a Velux window or a sun tunnel to bring in more natural light. These are discreet but highly effective.
- Dining layout: The dining table could be positioned slightly to one side in the space, depending on how many people typically use it day to day, giving a more flexible and open layout.
- Lounge access: The double doors into the lounge feel a bit awkward in the corner. It might feel more balanced and natural if they were centered, opposite the stairs instead.
Kitchen Design
Next Steps
At this stage, only a basic design has been completed — primarily to define the main living areas and ensure correct placement of drainage and services.
I’ll now be preparing a quote for the supply of kitchen furniture in two style options:
- In-frame doors, offering a more traditional, high-end look
- Lay-on doors, which provide a cleaner, contemporary feel and are typically more budget-friendly
Each option comes with its own aesthetic and cost implications, giving the flexibility depending on your preferences and priorities.
Conclusion
The client now has a clear understanding of the overall layout — including the new entrance, kitchen-diner, and hallway — and how movement through the space will work in day-to-day life.
They are now in a position to return to their architect and request the necessary revisions to the approved plans, ensuring the final design is both practical and well-considered.




