Georgian flat renovation, Redland, Bristol
Initial design for the client

The brief
This two bedroom ground floor flat has lain empty for four years and is currently undergoing a full renovation by the new owner.
What was a very narrow store room, has now been incorporated into what will become the main living space, and the need to create a new kitchen that will lend itself to open plan living and entertaining.
The Design
The client had a sketched out a basic layout, and pointed us in the direction of her 'Pinterest' board, as she couldn't really describe what style or colour she wanted.

Our answer
Having looked at her 'Pinterest board' we soon discovered that the overriding feel is what I call ' a warehouse feel' using traditional styles of cabinetry.
Using reclaimed brick slips, together with really high ceilings immediately evokes the warehouse look and feel.
Keeping tall cabinets to the bare minimum, coupled with long linear shelving, brings a nice contemporary twist to the kitchen.
Storage is maximised by utilising normal and shallow depth cupboards to create a peninsular for the sink, allowing good symmetry on the back wall.
Farrow and Ball - Hague blue gives a good contrast in a very light and airy room.

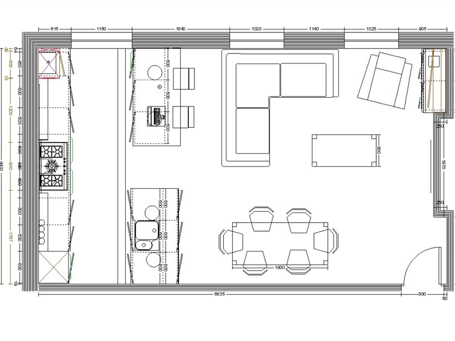
Initial Layout
Initial Ideas 1
Initial Ideas 2
The Result
We are currently waiting for images of the finished kitchen.



